





Schulanlage Steinhof
Jahr 2022 Auftragsart WB: Wettbwerb öffentlich Ort Luzern Status abgeschlossen Nutzung Sport/Unterricht/Mittagsbetreuung Auftraggeber*in Stadt Luzern Mitarbeit Bauingenieur/Holzbau: Bless Hess LuzernLandschaftsarchitektur: Land Schafft Sursee LU Visualisierung Liwyan Luzern
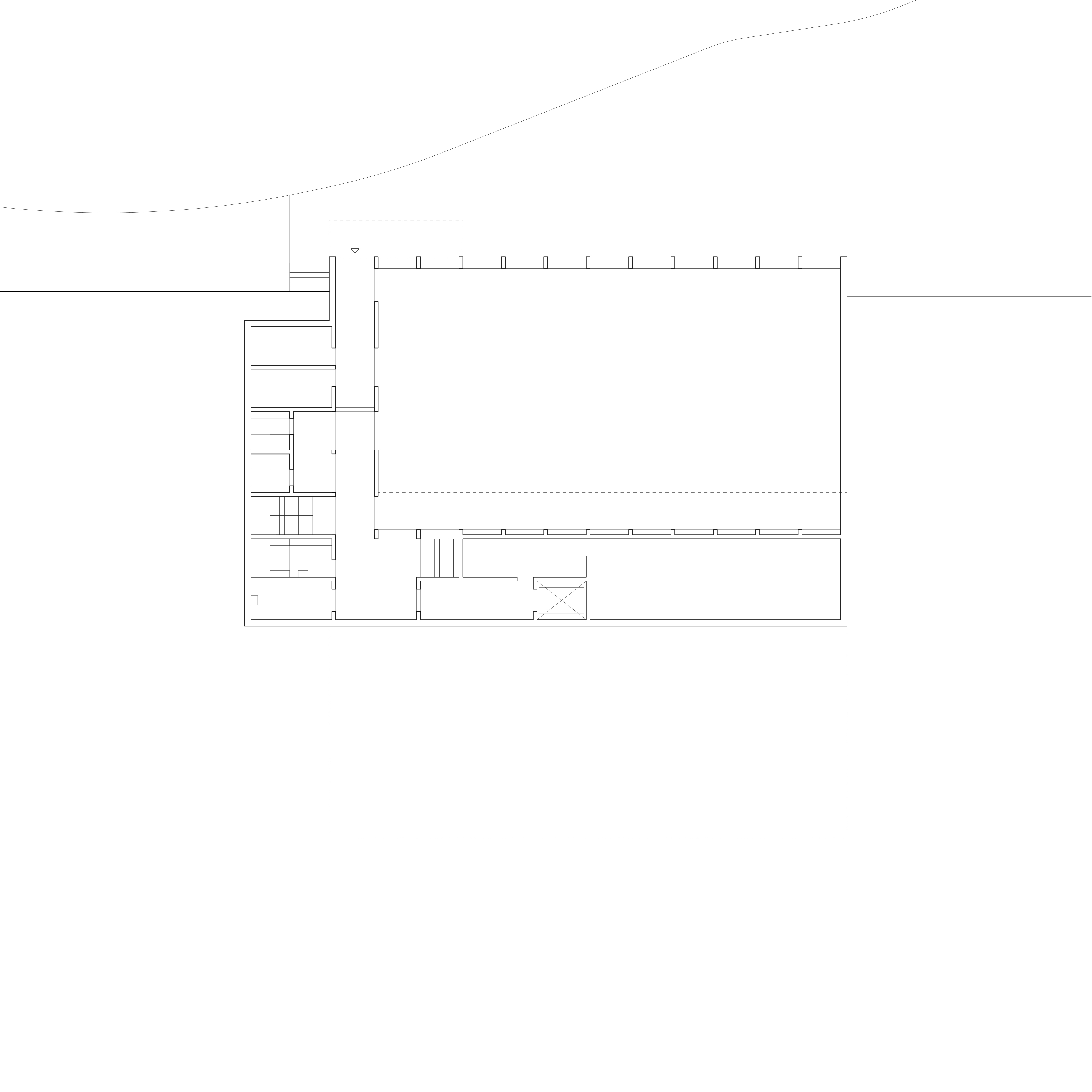
Die neue Anlage integriert sich in die steile Hangsituation und verbindet die Steinhofstrasse mit der Obergütschstrasse. Die zentrale Setzung und der minimale Fussabdruck eröffnet seitliche Freiräume, welche die begleitenden Bachlandschafteten einbindet und die Anlage als Gesamtkomposition erlebbar, spürbar und begehbar werden lässt.
Der Neubau entwickelt sich kaskadenartig von der Steinhofstrasse zur Obergütschstrasse und
reagiert den Nutzungen entsprechend im Aussenraum. Mit dem unteren
Eingangsgeschoss und der Sichtbarkeit der Turnhalle adressiert sich die Anlage
zur Steinhofstrasse. Auf dem Turnhallendach wird der Ballspielplatz mit seinem
Hartbelag Teil der Stadt und bildet mit seinen Ballfanggitter einen begehbaren
Sportbalkon, welcher an die ursprüngliche Turnhalle erinnert. Zur
Obergütschstrasse orientiert sich die eigentliche Schulanlage mit dem grossen Pausenplatz
und seinem verkehrsfreien Aussenraum.
Das Gebäude ist als Holzbau konstruiert. Die primäre Deckenkonstruktion mit
seiner sichtbaren Balkenstruktur sowie die geforderten Raumhöhen vom 3m, ermöglicht eine offene sichtbare Installation der Haustechnik, welche für eine
angestrebte Systemtrennung Voraussetzung ist. Eine Fassadenschalung aus
unbehandeltem Holz mit unterschiedlichen Breiten zeigen subtil die zugrunde
liegende Tektonik. Kontrastiert wird der Holzbau von Fassadenelementen aus
Aluminium, welche auf die individuellen Öffnungsanforderungen reagieren und mit
ihrem Rhythmus gleichzeitig eine Beständigkeit im Ausdruck ermöglichen.









