
























Ersatzbau Seehaus
Jahr 2021 - 2024 Auftragsart REAL: Direktauftrag Ort Hergiswil NW Status realisiert Nutzung Wohnhaus Auftraggeber*in Privat Mitarbeit Kostenplanung/Bauleitung: Blättler Bauplanung GmbH LuzernBau-/Holzbauingenieur: Bless Hess AG Luzern
Bauphysik: Brücker + Ernst GmbH Luzern
Holzbauarbeiten: Holzbau Niederberger AG Büren NW
Schreinerarbeiten: Stulz AG Malters LU Fotografie Philipp Mächler Philography Luzern
Die beiden
Zwillingsbauten an der Seepromenade bilden ein gestalterisches und städtebauliches
Duett. Ziegelgedeckte Krüppelwalmdächer mit tiefen, ausladenden Traufen, weiss
verputzten Sockelgeschossen und dunklen Holzfassaden im Obergeschoss prägen das
Ensemble. Dieser äussere Gesamtausdruck steht unter Denkmalschutz und bleibt
erhalten.
Zurückhaltend
interpretiert die äussere Gestaltung die vorhandene Holzbautradition. Mit
reduzierten gestalterischen Eingriffen, wie Dachfenster, umlaufende Bandfenster
und einem diskreten Dachgarten, wird der Bezug von innen zum präsenten See und
dem mächtigen Bergkamm Lopper wieder hergestellt. Dem öffentlichen Standort,
mit Badestelle und Bistro, wird mit einer vorgelagerten intimen Gartenanlage
entgegengewirkt. Eine Spalierkonstruktion umschliesst den privaten Zugangsraum
und bildet mit der schützenden Bepflanzung einen Filter zwischen Privat und
Stadt.
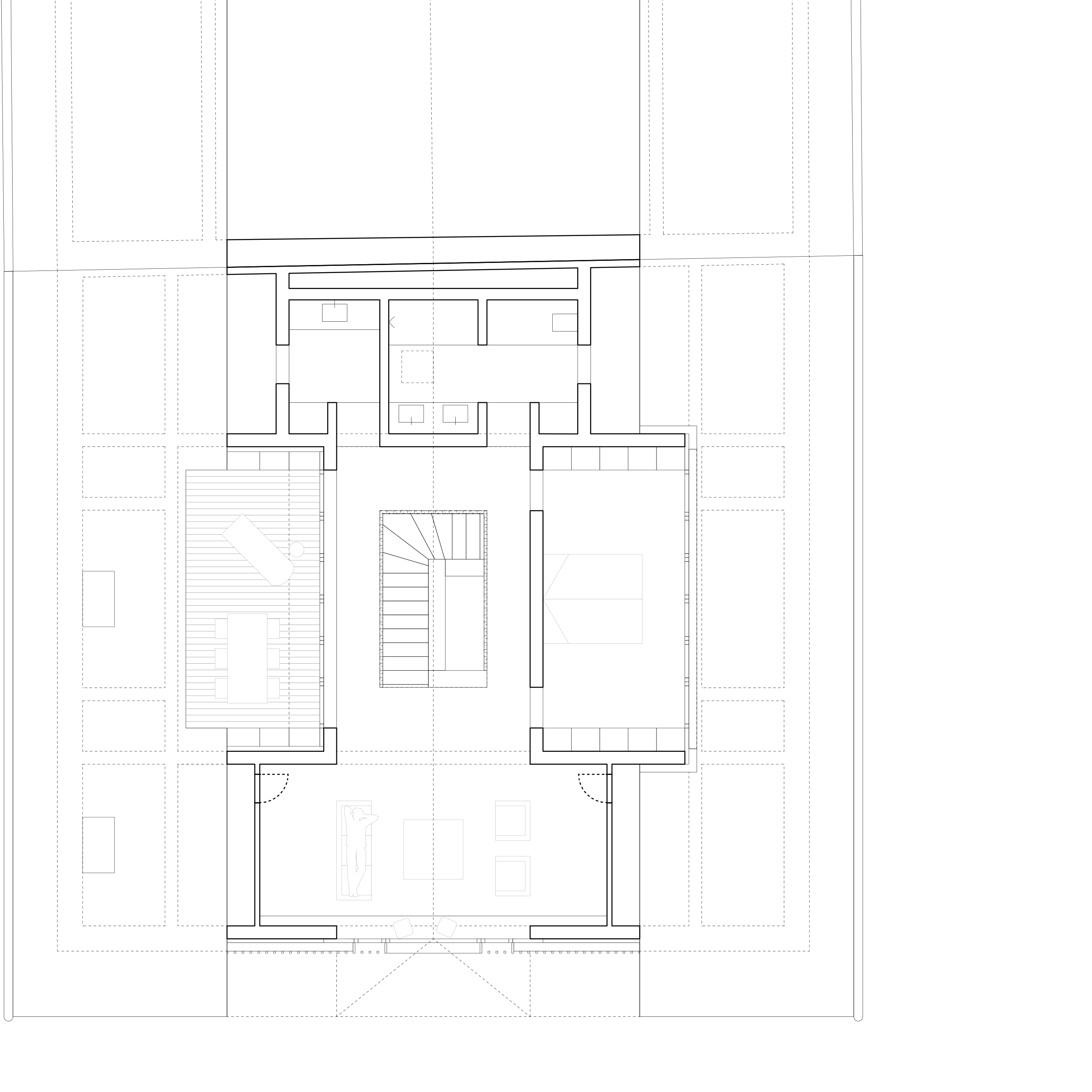
Die setzungsanfällige
Bodenbeschaffenheit am Seeufer bildet die Grundlage des statischen Konzeptes. Eine
die gesamte Gebäudebreite überspannende Holzbaukonstruktion und die Reduktion des
Eigengewichtes ermöglicht den Lastabtrag auf die bestehende Gebäudestruktur.
Damit kann auf aufwändige Fundationsmassnahmen verzichtet werden. Brettschichtträger
mit integriertem Stahlzugband, das darüber liegende Sprengwerk in Holz, als
auch das bestehende Deckenkonglomerat über dem Sockelgeschoss bilden die
primäre konstruktive Struktur. Sekundäre Konstruktionselemente, wie
aussteifende Holzträger im Dach, das Deckentragwerk mit einer Brettstapeldecke
und die zentrale Treppenanlage, führen diese Ordnung bis zur innenräumlichen
Wahrnehmung weiter.
Die
Ablesbarkeit der Tektonik, kontrastiert mit den raumbildenden Ausbauelementen
eine Sichtbarkeit möglicher Mehrfachprogrammierungen der Nutzungen. Damit wird
der Anforderung an die Veränderbarkeit der Architektur, im Sinne der
Wandelbarkeit einer Familie, Rechnung getragen. Gleichzeitig wird die grosse
Geschossfläche subtil auf einen bewohnbaren Massstab reduziert. Wandelemente
mit ihren Lehmbauoberflächen akzentuieren die sichtbaren Holzkonstruktionen und
sind Grundlage für ein nachhaltiges, natürliches Innenklima.
Diese Direktheit und Präsenz der Materialien und die Ablesbarkeit der statischen
Struktur
referenziert eine von Gebäudetransformationen geprägten Geschichte und
formuliert eine Aktualität von Nachhaltigkeit, Ressourcenschonung und möglicher
Wandelbarkeiten.









